玻利維亞的一個古老的印加城市使用3D打印的建筑物碎片模型進行了重建。

據精速3D了解,位于玻利維亞西部的擁有1,500年歷史的Pumapunku寺廟是玻利維亞西部蒂瓦納庫附近的蒂瓦納庫遺址的一部分,并被印加人認為是世界建立的地方。是公認為當時的建筑奇跡(公元500-950),Pumapunku在過去的500年里遭到洗劫,其中包括原始建筑的剩余150個街區都沒有留在原來的位置。現在科研員已經使用3D打印從剩余的碎片重建。 科研員說,同樣的技術可以用來重建敘利亞古城巴爾米拉,其部分被伊斯蘭國或柬埔寨的吳哥窟寺廟摧毀。

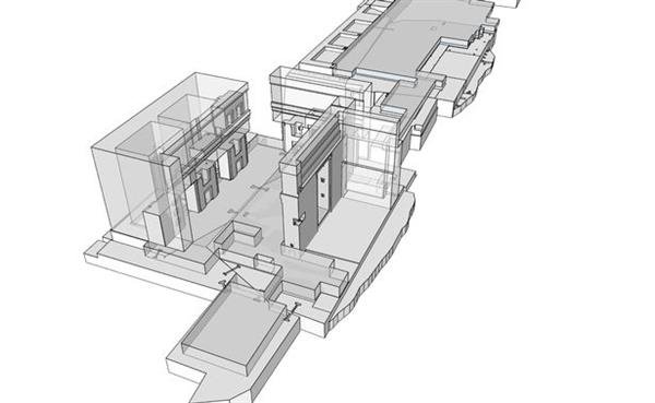
蒂瓦納庫古遺址的3D打印模型(圖片來源:Alexei Vranich博士/SWNS.COM) 利用歷史數據,3D打印件和建筑軟件,來自加州大學伯克利分校的考古學家Alexei Vranich建造了一個精確的3D打印微型建筑碎片模型,以重建蒂瓦納庫遺址中的Pumapunku建筑。 “這里的一個主要挑戰是Pumapunku的大多數石頭都太大而沒有辦法移動,而其他人先前研究的田間筆記給我們提供了難以想象的復雜而繁瑣的數據,”Vranich博士說。 “我們項目的目的是將這些數據轉化為我們的手和我們的頭腦都能掌握的東西。打印石頭的微型3D模型使我們能夠快速處理和重新安裝塊以嘗試重建結構。 “有可能使用3D打印的碎片模型可以幫助研究其他歷史遺跡,例如柬埔寨的吳哥窟,或者是最近破壞的受害者,例如敘利亞的巴爾米拉。”

(圖片:Alexei Vranich博士/SWNS.COM)
Vranich博士說:“一個特別有趣的問題是,散落在場地周圍的不同大小的門檻以一種可以產生”鏡子“效果的方式對齊,看起來無限的空間,實際上是觀察者正在查看一個單獨的房間。這可能與印加人認為這是世界建造的地點有關,也可能暗示該建筑被用作某種儀式空間。“
研究小組根據各種學者在過去一個世紀以及在蒂瓦納庫遺址發現的區塊的高度,長度和寬度的一半編制的測量結果,打印了總共140塊安山巖和17塊砂巖的三維模型。作者通過3D打印制作物理模型,然后對塊進行物理操作以重建站點,嘗試不同的方式將它們組合在一起。

模型的樣子(圖片:Alexei Vranich博士/SWNS.COM) Vranich博士說:“這項努力代表了最近使用計算機建模在屏幕上重建結構的方法的技術進步,但在操縱和可視化不規則3D形式時,人類大腦仍然比計算機更有效。我們嘗試過利用考古學家學習的能力,通過為他們提供可以物理操縱的3D打印物體,在空間中對不規則物體進行可視化和精神旋轉。
研究結果發表在“遺產科學”雜志上。
Copyright ? 2014-2020 精速三維 All Rights Reserved 備案號:粵ICP備18153175號-1